24.05.2016
Чтобы узнать, подходит ли для планировки вашей комнаты та мебель, которую вы намереваетесь произвести в плане размерных характеристик, стоимости, емкости трудозатрат, или заказать ее изготовление, поможет деталировка мебели.
Деталировка или детализация мебели представляет собой подсчет требуемого числа деталей, куда входят панели, профили, фурнитуры, метизы, а также количества работ, необходимого для производства изделия по заявленному проекту.



Многие начинающие работники из числа специализирующихся на производстве корпусных моделей, что создав эскиз или чертеж изделия, можно без промедления приступать к ее сборке. Тот факт, сколько необходимо видов материала и их количество, остается без внимания.
Чтобы минимизировать затраты, время, устранить недостачу, сделать изделия прочным, необходим тщательный расчет деталей и комплектующих, характеристик, денежной суммы на их приобретение. Особенности материалов также имеют большое значение при деталировке. Например, деталь, выполненная из ДСП, требует отделки кромкой, ламинатом, фурнитура может требовать специального крепления. Только учитывая все эти моменты, можно наверняка подсчитать затраты на изготовление.
Деталировка мебели позволяет:
Деталировку можно вполне сделать ручным способом, если изделие небольших размеров и простое в конструкции. Например, тумба с одной полкой и дверцей может быть спроектирована даже неопытным человеком. Сложнее приходится с многофункциональной, габаритной мебелью, где присутствуют множество отделений, зеркал, направляющих, ящиков, перекладин. Здесь всегда требуется много фурнитуры, возможно дорогих декоративных элементов. Учитывая их в необходимом количестве при планировании, можно существенно сэкономить деньги и время.
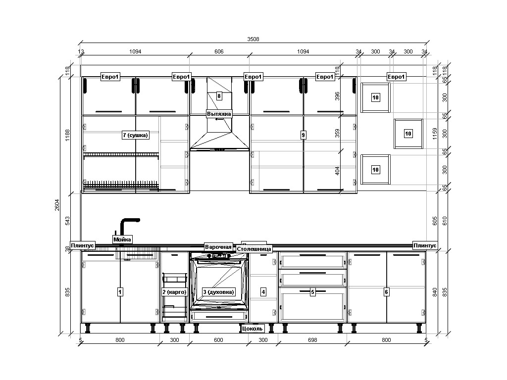
Чтобы произвести работу сложного уровня, нашей компанией используются специальные программы по проектированию. Виртуальные приложения помогают не только быстро разработать результат с помощью заданных параметров, но и помочь мастерам и заказчикам наглядно рассмотреть каждую часть в реальных формах и соотношениях. Есть несколько видов программ, но наши мастера используют наиболее удобные и зарекомендованные.
В план деталировки включается зарисовка эскиза, чертеж схемы, подробное уточнение размеров в цифрах и количествах материала каждого компонента мебели.
ЗВОНИТЕ ПРЯМО СЕЙЧАС!
(044) 227-69-21 или (093) 529-25-99
Комментарии
Пока нет комментариев